Christinedalsvej ældreboliger, Svendborg
I Svenborgs vestlige kant, finder du 37 ældreboliger. -Tæt på Svendborgsund og motorvejen.
Om boligerne
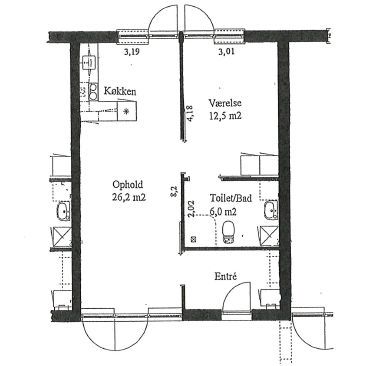
På Christinedalsvej ligger der 37 ældreboliger.
Alle boligerne er toværelses med stue/køkken, soveværelse og badeværelse.
Boligernes størrelser er fra 54 til 80 m², de fleste er på 60 m².
Bemærk: boligstørrelsen er angivet inklusiv eventuelle fællesarealer.
Adresse
Christinedalsvej 18-22
5700 Svendborg
Telefon 62 21 14 18
Husleje, indskud og nøgler
Boligerne udlejes af Sygekassens Hjem.
Huslejen er inklusiv vand, renovation og tv-grundpakke.
Derudover skal du som lejer selv betale for el, internet, indboforsikring og en eventuelt større tv-pakke.
Kontakt Sygekassens Hjem via nedenstående link, for at høre mere om, hvad det koster at bo i ældreboligerne, og hvis du har spørgsmål til nøgler.









